Software > Technical Software > Electrical Engineering > ALPI Caneco Implantation
Planning and design of electrical systems in 2D/3D on the Autodesk AutoCAD platform

ALPI Caneco Implantation

Planning and design of electrical systems in 2D/3D on the Autodesk AutoCAD platform

Version:  2x

 
 
 
 
 
 
 
 
Updated on 14. Jun 2024 by SoftGuide

The professional 2D/3D CAD software for electrical planning & engineering.

Caneco Implantation is the latest generation of software for planning and designing electrical systems in 2D/3D on the Autodesk AutoCAD® MEP/ADT/OEM platform.

The functions

Intelligent electrical CAD planning

  • Electrical high- and low-current planning in DWG format with integrated 2D/3D library
  • Draw 3D installation systems and cable routes - automatic cable routing dimensions the corresponding cable routes according to weight, fill level, system, reserve and much more.

CAD and calculation combined

  • CAD floor plan planning from Caneco Implantation provides the basis for automatic calculation of cables and protective devices in Caneco BT
  • Calculation and checking of cable routes in the floor plan.
  • Automatic transfer of changes minimizes errors

Cable management

  • Automatic determination of the most economical cable routing - taking into account zones, rules, routes, branches, etc.
  • Sectional views of cable routes and detailed cable pull lists

Continuous and automatic project documentation

  • Project documents at the touch of a button

Your benefit

  • Optimization of workflows
  • Compatible with proven platforms: Autodesk AutoCAD® MEP/ADT. Alternatively with integrated (DWG/DXF) OEM core.
  • Technical calculations: Exchange and calculation with CAneco BT, light calculation with DIAlux®, calculation of cable routes and paths

Multilingual

With the International package, you can print your order documents automatically translated into nine languages.

Looking for the right software? Trust SoftGuide!

Our experts will find the perfect solution for you - independently and at the cutting edge of software trends.

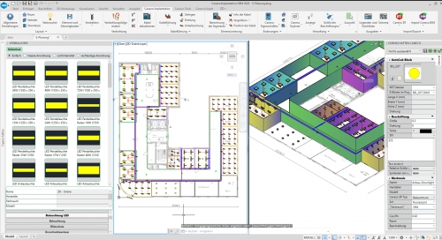
Screenshots

Functions (excerpt) of ALPI Caneco Implantation:

2D representation
3D representation
Assembly lists
Autoplacement
Autorouting
Building Information Modeling (BIM)
Cable calculation
Cable plan creation
Circuit and circuit diagrams
Circuit diagrams and schematics
Circuits and systems
Current carrying capacity
Export functions
Graphical display forms
Import functions
Installation planning and load calculation
Interfaces
Inventory lists
Line chart
Mass determination
Parts list completeness
Parts list management
Pipe production
Project Management
Project planning
Project templates
Report management

Looking for the right software? Trust SoftGuide!

Technical specifications:

Manufacturer:
IGE+XAO Software Vertriebs GmbH
Web-based:
no
SaaS, Cloud:
no
On-premises (local installation):
yes
Multi-user (network-compatible):
yes
Maintenance:
for a fee
First installation (year):
1995
Number of installations:
>1000
Manufacturer based in:
Germany
Training:
for a fee
Hotline:
included in price
Installation support:
included in price
Dialogue language(s):
English, German, French
System requirements:
Compatible operating systems (runs with):
Win 11
Win 10
Win Server
Mainframe based
Unix based
Linux based
Mac OS
Mobile OSs (supports):
iOS
Android
Old Compatible Operating Systems:
Win 8
Win 7
Win Vista
Win XP
Data storage medium:
DVD
CD-ROM
Download
Flash memory