Software > Services > Facility Management > AT+C VM.7
CAFM software solution (Computer Aided Facility Management)

AT+C VM.7

CAFM software solution (Computer Aided Facility Management)

Version:  20.0

 
 
 
 
 
 
 
 
Updated on 10. Jul 2024 by SoftGuide
Demo version

Around 80 % of all life cycle costs for a building are incurred during the active use phase. However, it is this cost factor that must be constantly monitored. To ensure that these life cycle costs do not exceed the value of the building, efficient facility management is required in order to make optimum use of the available operating resources and at the same time keep the costs for the management and administration of buildings, facilities and equipment at a reasonable level. The powerful CAFM system AT+C VM.7 offers advantageous support in this area for a wide range of applications.

Thanks to the AT+C VM.7 CAFM software solution, individual building management can be made significantly more transparent and efficient. It does not matter what type of property management it is used for. Thanks to the modular system structure, this CAFM system can be individually adapted and is therefore suitable for both smaller and larger properties and building complexes.

Your benefits when using the AT+C VM.7 CAFM software solution:

  • Efficient and transparent
  • Supports property and space management
  • Is suitable for managing inventory and facilities
  • Enables relocations including various variant planning
  • Supports the creation of cleaning and area plans as well as quality assurance
  • Takes into account maintenance and servicing schedules as well as safety and environmental aspects
  • Includes key management, room book and plant security
  • Includes the basis for budgeting and controlling
  • With bidirectional connection between SQL database systems and coordinated CAD graphics
  • Supports functions such as DDE, OLE and MDI
  • Including connection to databases such as MS SQL Server or Oracle
  • Easy exchange of information and data
  • User-friendly
  • Clearly laid out
  • With interfaces to all common Windows programs and commercial systems such as SAP
  • With Windows or web interface
  • Including interfaces to network management systems and building technology
  • All database tables can be freely defined
  • The costs remain manageable and traceable
  • Including database manager
  • Enables the uncomplicated integration of external databases and tables
  • Including extensive options for assigning individual rights
  • Thanks to the integrated reporting tool, relevant information on each area, selective objects, drawings, areas, inventory and more can be recorded quickly
  • Enables comprehensive project evaluation

Interfaces:

BIM
SAP
SNMP

References:

Siemens Healthineers, REWE, RWE, Deutsche Bahn, MTU AeroEngines, ERGO Direkt, Spie GmbH, Debeka, IT.NRW, Vienna University of Economics and Business, Zurich Airport, Milan Airport, NTT DocoMo, Fuji TV, Shiga University, etc.

Explore more about the software:
Video appointment
request
Software exposé
request URL
Contact:
Send message

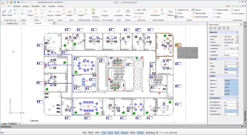
Screenshots

Functions (excerpt) of AT+C VM.7:

Budgeting
Calendar and appointment management
Energy management
Facility management
Inspection management
Inventory lists
Key & Lock Management
Maintenance
Maintenance
Meter management
Network plans
Report management
Space management
Task management

Price

from 5,000.00
EUR
plus 19% VAT
per client
Concurrent User Modell
from 400.00
EUR
plus 19% VAT
monthly
Rental model

Get to know the software better! Request a video appointment for a personal presentation!

Technical specifications:

Web-based:
yes
SaaS, Cloud:
yes
On-premises (local installation):
yes
Multi-user (network-compatible):
yes
Multi-client compatible:
yes
Maintenance:
for a fee
Customizing:
possible for a fee
First installation (year):
1987
Number of installations:
1500
Manufacturer based in:
Germany
Training:
for a fee
Hotline:
for a fee
Installation support:
for a fee
Documentation:
Manual, Online Help, Demo version, Technical documentation
Dialogue language(s):
English, German, French
System requirements:
Compatible operating systems (runs with):
Win 11
Win 10
Win Server
Mainframe based
Unix based
Linux based
Mac OS
Mobile OSs (supports):
iOS
Android
Old Compatible Operating Systems:
Win 8
Win 7
Win Vista
Win XP
Data storage medium:
DVD
CD-ROM
Download
Flash memory

Software was recommended by SoftGuide in this IT projects:

Office management software with customer service functionality required

Project no.: 23/3037
Tender until: finished

We are a real estate company specializing in commercial properties and manage properties ... more

Financial services provider seeks CAFM (computer-aided facility management)

Project no.: 19/1723
Tender until: finished

We are a financial services provider and are looking for CAFM software to manage our own ... more

State authority seeks comprehensive administrative software

Project no.: 18/1300
Tender until: finished

We are a state authority and, in the course of digitization, are looking for comprehensive, ... more

more IT projects